Casa en calle Curamávida
Casa en calle Curamávida
Casa en calle Curamávida
Casa en calle Curamávida
Casa en calle Curamávida
Casa en calle Curamávida
Casa en calle Curamávida
1/7
Casa en calle Curamávida
Casa en calle Curamávida
Casa en calle Curamávida
Casa en calle Curamávida
1/4

Casa en calle Curamávida

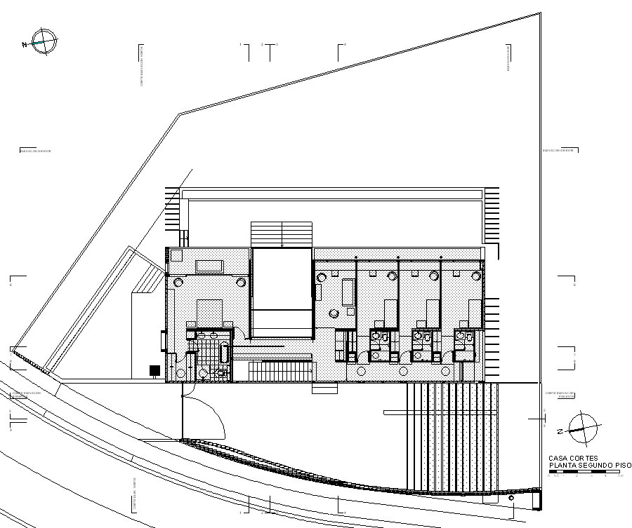
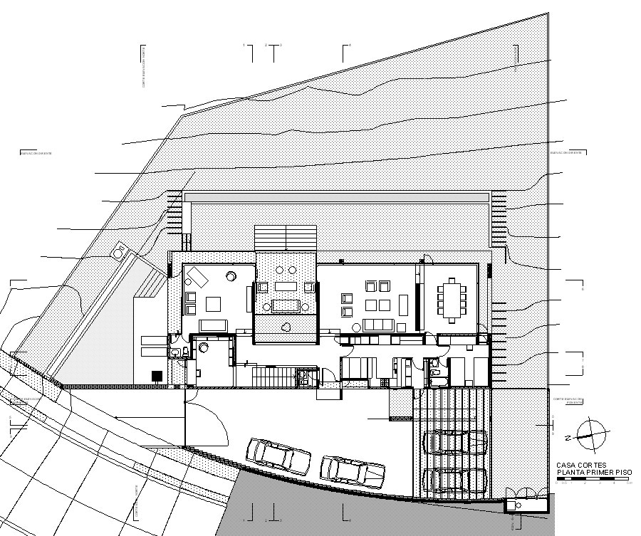
Esta casa incluye 4 dormitorios de niños, una sala de estar contigua, un dormitorio principal con baño y salita, escritorio, sala, comedor, cocina, servicios y 3 dormitorios de servicio. Tal cantidad de recintos se ordenan respecto al lugar al modo de una villa. Las áreas comunes enfrentan directamente el exterior. Hacia el Noreste, aprovechando el desnivel del terreno, se dispuso el área de niños y de dormitorios de servicio medio piso abajo, y el sector de los padres medio piso arriba, generando un techo continuo que atraviesa el proyecto en todo su largo.

En medio del área pública se insertó un patio cuadrado, de perímetro vidriado y suelo de agua, que ordena las circulaciones entre recibos y exteriores.

Arquitecto

Antonia Lehmann S.B., Luis Izquierdo W.

Ubicación

Las Condes, RM, Chile

Año

2007

Superficie construida

718,57 m²

Ingeniería estructural

Miguel Sandor

Constructora

M3

Fotógrafo

Luis Izquierdo W.