Casa en calle Del Corralero
Casa en calle Del Corralero
Casa en calle Del Corralero
Casa en calle Del Corralero
Casa en calle Del Corralero
Casa en calle Del Corralero
Casa en calle Del Corralero
1/7
Casa en calle Del Corralero
Casa en calle Del Corralero
1/2

Casa en calle Del Corralero

Arquitecto

Antonia Lehmann SB.

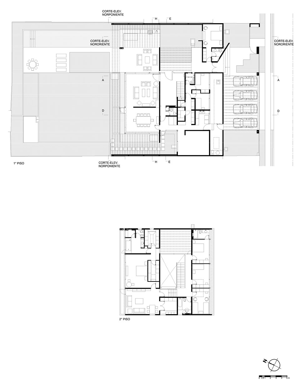
Ubicación

Vitacura, RM, Chile

Año

2012

Superficie construida

433,17 m²

Ingeniería estructural

Julio Yoma Rojas

Constructora

Rodrigo De Las Heras De Pablo