Casa en calle El Tordillo
Casa en calle El Tordillo
Casa en calle El Tordillo
Casa en calle El Tordillo
Casa en calle El Tordillo
Casa en calle El Tordillo
1/6
Casa en calle El Tordillo
Casa en calle El Tordillo
Casa en calle El Tordillo
Casa en calle El Tordillo
1/4

Casa en calle El Tordillo

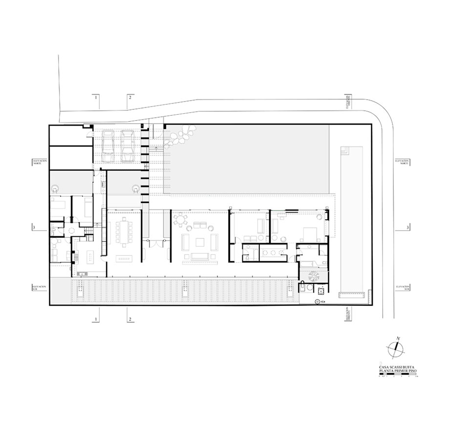
Esta casa se ubica en el Valle de la Dehesa en un terreno esquina cuyo lado mayor está orientado al norte. El encargo es de una persona mayor que vive sola pero recibe a su numerosa familia a menudo .  El proyecto propone un gran espacio de recibos más diversos recintos que se relacionan a través de una gran galería vidriada, abierta a una franja de jardín sur. Todos los recintos principales se abren hacia el nor-poniente y al sur-poniente simultáneamente. Esta doble orientación hace de la casa un solo espacio articulado por muros sueltos paralelos entre sí. El vecino permitía aumentar el adosamiento sur de manera que la losa de la casa se adosa al deslinde sur ganando bajo ella  un espacio de jardín que se incorpora sobre este  como un interior a la casa a través de la galería vidriada. Sobre este jardín la losa se perfora para dejar pasar la luz.

Los niveles del suelo se adaptan a la topografía dando una mayor altura a los recintos principales y una menor a los de servicios, que están bajo la misma losa.

Arquitecto

Luis Izquierdo W., Antonia Lehmann S.B.

Ubicación

Lo Barnechea, RM, Chile

Año

2003  

Superficie construida

361,02 m²

Ingeniería estructural

Luis Soler y Cia.

Constructora

ACM Ltda.