Casa en Camino El Colibrí
Casa en Camino El Colibrí
Casa en Camino El Colibrí
Casa en Camino El Colibrí
Casa en Camino El Colibrí
Casa en Camino El Colibrí
1/6
Casa en Camino El Colibrí
Casa en Camino El Colibrí
Casa en Camino El Colibrí
Casa en Camino El Colibrí
Casa en Camino El Colibrí
Casa en Camino El Colibrí
Casa en Camino El Colibrí
1/7

Casa en Camino El Colibrí

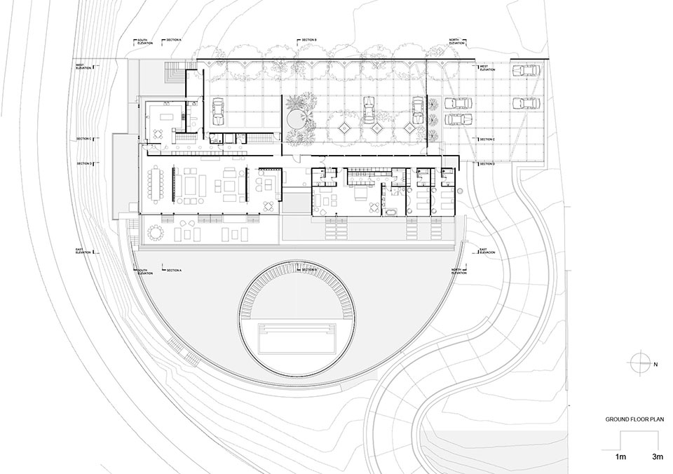
Esta es una casa de gran tamaño pensada para reunir a una numerosa familia. Está ubicada en la cima de un cerro, con una espléndida vista a la Los Andes. Los salones de recibo, comedor, cocina y dormitorio principal fueron ubicados en un sólo piso, sin desniveles. Un zócalo bajo el nivel principal contiene una sala de juegos y una piscina interior. En el mismo nivel, se ubica una piscina con un estar exterior, con un patio circular. Esta terraza se encuentra parcialmente techada con un prado de forma semicircular, que forma un jardín plano frente al pabellón del piso principal de la casa.

La casa se construyó en hormigón armado y pigmentado, con terminación de cara vista hacia el exterior y con aislación y pintura blanca hacia los interiores.

Arquitecto

Luis Izquierdo W., Antonia Lehmann S.B.

Ubicación

Vitacura, RM, Chile

Año

2013

Superficie construida

1.029,82 m²

Ingeniería estructural

Luis Soler y Cia.

Constructora

Marchetti

Fotógrafo

Roland Halbe