Casa en Las Pataguas
Casa en Las Pataguas
Casa en Las Pataguas
Casa en Las Pataguas
Casa en Las Pataguas
Casa en Las Pataguas
1/6
Casa en Las Pataguas
Casa en Las Pataguas
Casa en Las Pataguas
Casa en Las Pataguas
Casa en Las Pataguas
1/5

Casa en Las Pataguas

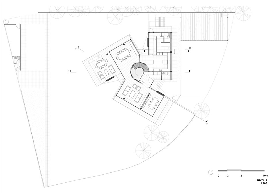
Casa emplazada en un terreno irregular de pendiente moderada y frente curvo, en un suburbio consolidado del sector oriente de Santiago de Chile.

El proyecto busca organizar una gran casa en una figura compacta, con un perímetro extenso. En el primer piso las áreas de comer, cocinar y compartir se distribuyen en tres pabellones en torno a un centro común. En la segunda planta, la zona de dormir se organiza en 3 áreas con bordes simétricos y distribución variable.

El centro de la casa lo ocupa una escalera de caracol sobre un patio circular, que conecta niveles, separa estancias, ilumina el centro y ventila la casa.

La envolvente y la especificación de los materiales se han analizado cuidadosamente para obtener un rendimiento térmico óptimo y un gasto energético mínimo, tanto en la construcción como en el funcionamiento de la casa.

Inscribir la especificidad de sus múltiples requisitos en una estructura simétrica, denotando sus momentos conmensurables, ha sido el mayor reto del proyecto.

Arquitecto

Cristián Izquierdo L.

Colaborador

Rosario Edwards

Ubicación

Lo Barnechea, RM, Chile

Año

2025

Superficie construida

348,76 m²

Ingeniería estructural

FHS - Ernesto Hernández

Constructora

Jofal - Francisco Álvarez

Fotógrafo

Roland Halbe