Casa en Lo Curro
Casa en Lo Curro
Casa en Lo Curro
Casa en Lo Curro
Casa en Lo Curro
Casa en Lo Curro
1/6
Casa en Lo Curro
Casa en Lo Curro
Casa en Lo Curro
Casa en Lo Curro
Casa en Lo Curro
Casa en Lo Curro
1/6

Casa en Lo Curro

Arquitecto

Luis Izquierdo W., Antonia Lehmann S.B

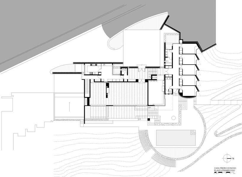
Ubicación

Vitacura, RM, Chile

Año

2009

Superficie construida

770,29 m²

Ingeniería estructural

Luis Soler P. y asociados.

Constructora

ISA.