Casa en Zapallar
Casa en Zapallar
Casa en Zapallar
Casa en Zapallar
Casa en Zapallar
Casa en Zapallar
1/6
Casa en Zapallar
Casa en Zapallar
Casa en Zapallar
1/3

Casa en Zapallar

Arquitecto

Antonia Lehmann SB.

Ubicación

Zapallar, Region de Valparaíso, Chile

Año

2017

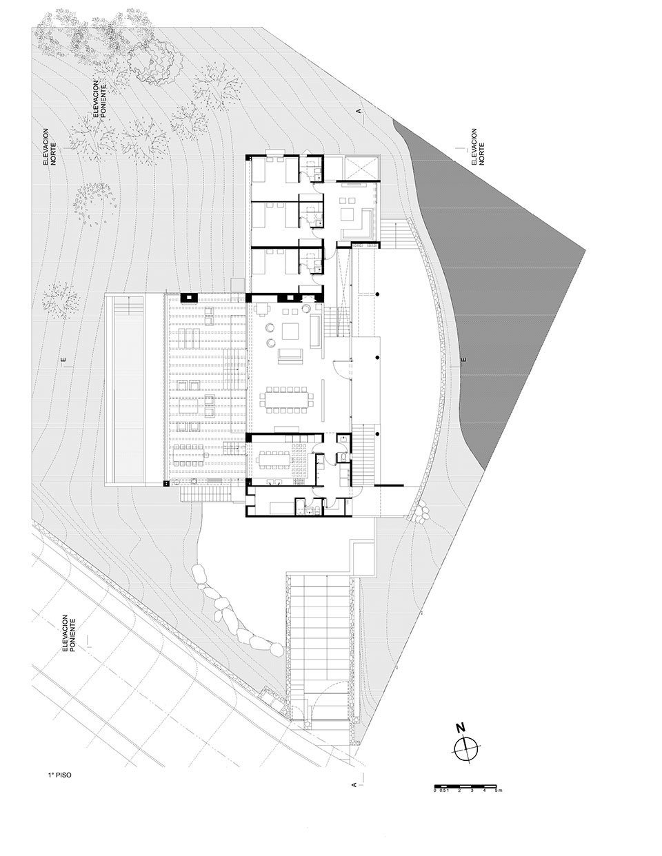
Superficie construida

392,62 m²

Ingeniería estructural

Julio Yoma Rojas

Constructora

Constructora Carlos Marchetti Pareto