Casa y taller en calle Los Ginkos
Casa y taller en calle Los Ginkos
Casa y taller en calle Los Ginkos
Casa y taller en calle Los Ginkos
Casa y taller en calle Los Ginkos
Casa y taller en calle Los Ginkos
1/6
Casa y taller en calle Los Ginkos
Casa y taller en calle Los Ginkos
Casa y taller en calle Los Ginkos
Casa y taller en calle Los Ginkos
Casa y taller en calle Los Ginkos
1/5

Casa y taller en calle Los Ginkos

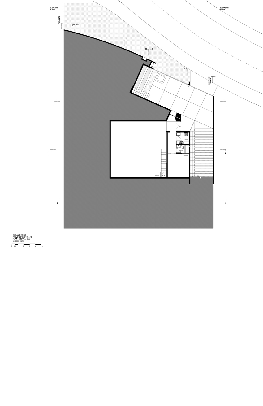
El proyecto ocupa varios niveles del terreno de acuerdo al programa encargado: Una casa taller para un pintor y su familia. Próximo al acceso vehicular desde la calle y bajo el jardín de la casa que está construida más arriba en la pendiente del terreno, se localiza el taller de pintura, con sus bodegas y escritorio. Este taller debía ser un recinto cerrado al exterior, con iluminación artificial pareja y constante, más un rayo de sol cayendo sobre el suelo desde una lucarna, que anima el espacio y marca el paso del tiempo. El tragaluz emerge en el techo-jardín como un cuerpo inclinado frente al horizonte.

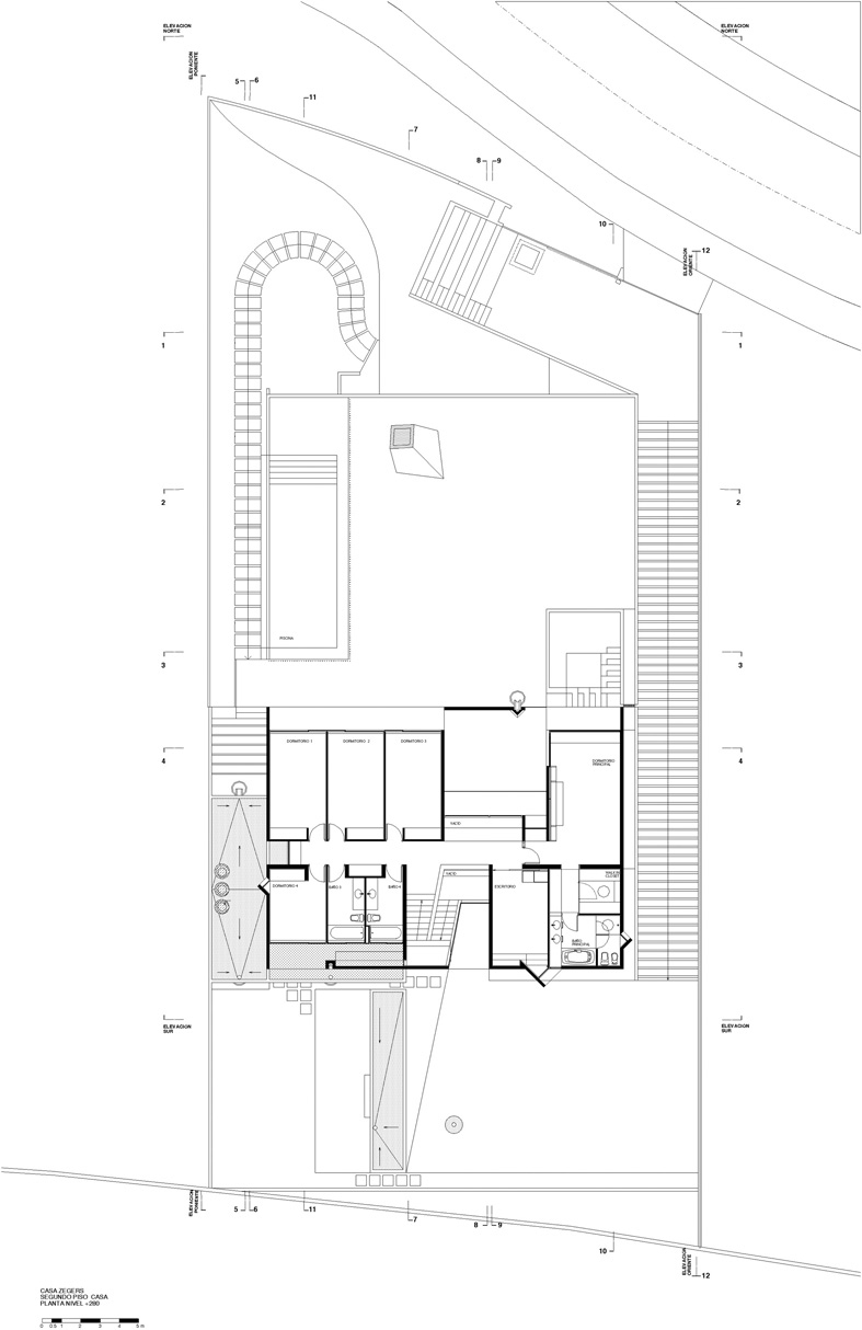
La casa se desarrolla en la parte superior del terreno. Una rampa vehicular comunica la calle con un patio de acceso en el nivel más alto del terreno. La casa es un volumen regular de 2 pisos con los recibos y servicios abajo y los dormitorios arriba. Es una “caja” porosa. Tiene doble altura en el acceso y en la terraza cubierta (a modo de loggia), comunicando ambos niveles. Los recintos principales se abren hacia el norte que coincide con la vista del valle de La Dehesa, sobre una terraza-jardín correspondiente al techo del taller.

Arquitecto

Luis Izquierdo W.

Ubicación

Las Condes, RM, Chile

Año

2003

Superficie construida

583,13 m2

Ingeniería estructural

Luis Soler y Cia.

Constructora

Constructora Jarco Ltda.

Fotógrafo

Roland Halbe