Conjunto Burgos
Conjunto Burgos
Conjunto Burgos
Conjunto Burgos
Conjunto Burgos
Conjunto Burgos
Conjunto Burgos
Conjunto Burgos
1/8
Conjunto Burgos
Conjunto Burgos
Conjunto Burgos
Conjunto Burgos
Conjunto Burgos
Conjunto Burgos
Conjunto Burgos
Conjunto Burgos
1/8

Conjunto Burgos

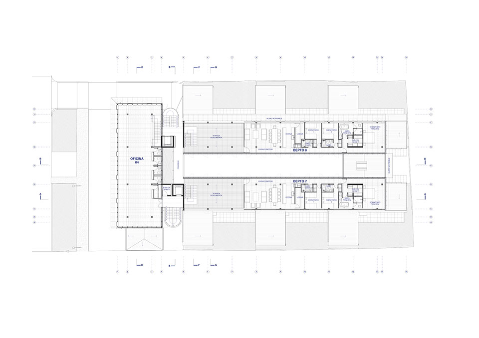
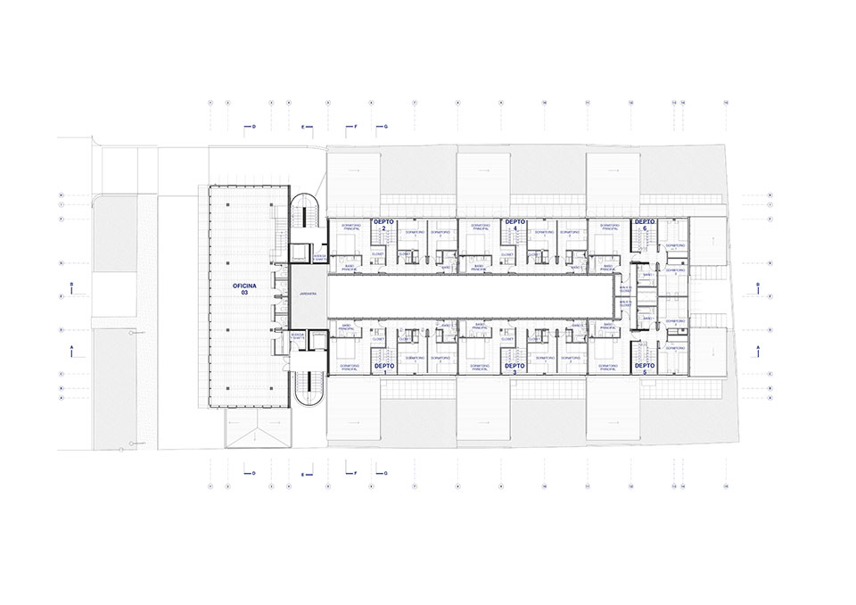
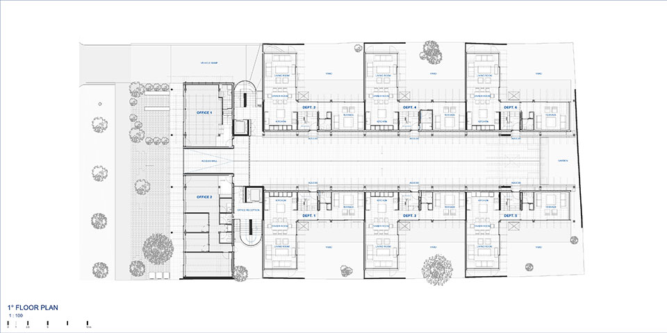
Este conjunto de viviendas y oficinas a nivel de calle, es el primer edificio latinoamericano proyectado para ser carbono neutral en todo su ciclo de vida.
Se ubica en un terreno rectangular ocupado previamente por una gran casa, en un barrio residencial de baja altura a pasos del centro financiero de Santiago.

El proyecto se concibe como un prototipo de densificación equilibrada realizado a partir de siete principios replicables en otros contextos ciudadanos La estructura de madera laminada se compone por una modulación continua. Una serie de columnas cada 425 cm atraviesan los 3 pisos con una sola pieza, sosteniendo sendos pares de vigas maestras, que reciben vigas secundarias cada 85 cm. La yuxtaposición de los distintos programas y tipologías en esta modulación constructiva cualifica los espacios y programas, sin estorbarse.

La rítmica fachada de madera de ciprés carbonizado, con sus rastreles expuestos, esconde las diferencias bajo una fachada. Arquitectura ambigua en significados y diáfana en su figuración.

Arquitecto

Cristián Izquierdo L.

Colaborador

Rosario Edwards, Francisco Saul

Ubicación

Las Condes, RM, Chile

Año

2025

Superficie construida

2.665 m²

Ingeniería estructural

Luis Soler y Cia.

Constructora

Tecton Edificación

Fotógrafo

Roland Halbe