Conjunto San Crescente
Conjunto San Crescente
Conjunto San Crescente
Conjunto San Crescente
Conjunto San Crescente
Conjunto San Crescente
Conjunto San Crescente
Conjunto San Crescente
1/8
Conjunto San Crescente
Conjunto San Crescente
Conjunto San Crescente
Conjunto San Crescente
Conjunto San Crescente
Conjunto San Crescente
Conjunto San Crescente
1/7

Conjunto San Crescente

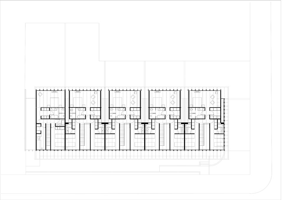
Este conjunto de viviendas se ubica en un barrio jardín cercano a la avenida principal de Santiago. La construcción se concibe como un volumen unitario frente a la calle, estructurado según dos modelos.

Longitudinalmente, una serie de elementos de madera laminada gradan la intimidad entre la calle y el fondo del terreno. Transversalmente, una serie de muros de hormigón dividen el volumen en 5 crujías iguales.

Las vigas y pilares se disponen a una modulación continua de 76 cm. La repetición de este módulo cualifica las fachadas con un ritmo constante que quiebra la vista hacia los vecinos y enmascara las diferencias de propiedad en un volumen unitario, al modo de una gran casa para 5 familias que se abre a la calle como si fueran una.

Arquitecto

Cristián Izquierdo L.

Colaborador

Francisco Saul

Ubicación

Las Condes, RM, Chile

Año

2021

Superficie construida

1.266, 83m²

Ingeniería estructural

Luis Soler y Cia.

Constructora

Tecton Edificación

Fotógrafo

Roland Halbe