Edificio Inacap de Temuco
Edificio Inacap de Temuco
Edificio Inacap de Temuco
Edificio Inacap de Temuco
Edificio Inacap de Temuco
Edificio Inacap de Temuco
Edificio Inacap de Temuco
1/7
Edificio Inacap de Temuco
Edificio Inacap de Temuco
Edificio Inacap de Temuco
Edificio Inacap de Temuco
Edificio Inacap de Temuco
Edificio Inacap de Temuco
Edificio Inacap de Temuco
Edificio Inacap de Temuco
Edificio Inacap de Temuco
1/9

Edificio Inacap de Temuco

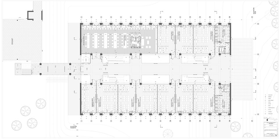
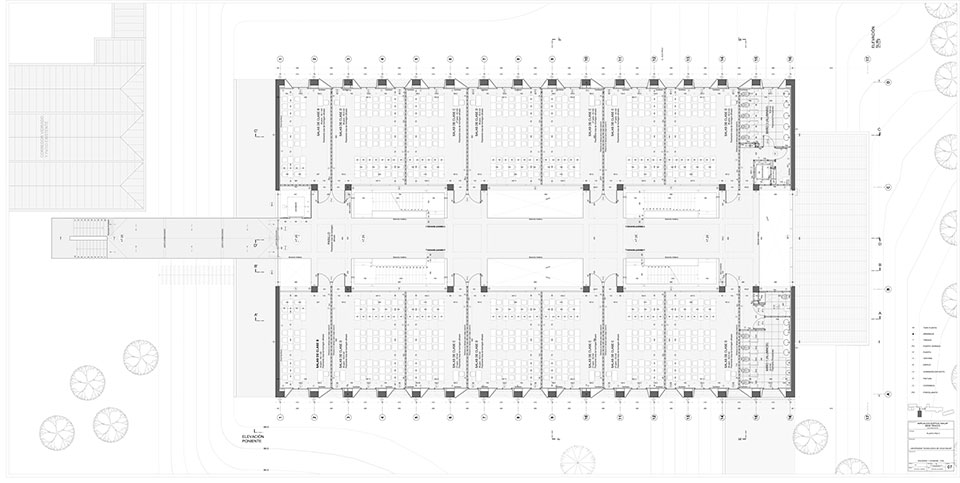
Edificio educacional con salas de clase y la remodelación de la sede existente.

Arquitecto

Cristián Izquierdo L., Luis Izquierdo W, Osvaldo Larraín

Ubicación

Temuco, Región de la Araucanía, Chile

Año

2021

Superficie construida

6.295 m²

Ingeniería estructural

Luis Soler y Cia.

Constructora

Axis

Fotógrafo

Roland Halbe